Ciclo Tecnologico
Le stazioni di sollevamento, utilizzate per il rilancio delle acque reflue vengono fornite già complete al loro interno di pompe di sollevamento, tubi guida, tubazioni di mandata, valvolame, sonde di livello, corredate di quadro elettrico eventualmente di tipo stradale e relativi accessori per il corretto funzionamento.
Accessori
Rivestimenti specifici superfici interne ed esterne vasca, coperture pedonali/ carrabili, chiusini in ghisa sferoidale.
Rivestimenti interni/esterni specifici, coperture carrabili/pedonali – chiusini, fori, materiali speciali (inox ed altri), quadro PLC, sensori di livello tipo piezoresistivo/piezocapacitivo/ ad ultrasuoni, sistema elettronico di gestione partenza elettropompe, sistema di telecontrollo, misuratori di portata elettromagnetici, griglie a cestello, paratoie a tenuta, predisposizioni per installazione in presenza di falda acquifera sotterranea.
Descrizione
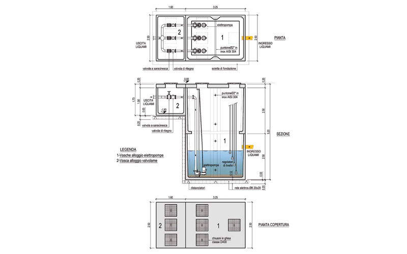
Le STAZIONI di SOLLEVAMENTO monoblocco prefabbricate in C.A.V. vengono realizzate con calcestruzzo confezionato con CEMENTO PORTLAND tipo I 52,5R avente ALTA RESISTENZA ai SOLFATI (ARS), FIBRORINFORZATO con fibre sintetiche antifessurazione, avente resistenza a compressione C40/50 (Rck ≥ 500 Kg./cmq.), classi di esposizione XC4, XS2/XD2, XF3, XA2, dotata di armature interne d’acciaio ad aderenza migliorata tipo B450C controllate in stabilimento.
Le stazioni di sollevamento sono composte da vasche monoblocco corredate di tutti i dispositivi quali: manicotti in PVC/acciaio INOX per collegamento tubazioni, elettropompe sommergibili di sollevamento con basamento per accoppiamento rapido, catena in acciaio INOX AISI 304 con grillo, valvola di ritegno a palla in ghisa, tubo di guida in acciaio INOX AISI 304, tubazione di mandata in acciaio INOX AISI 304, regolatori di livello a variazione di assetto, quadro elettrico di comando e controllo, necessari a realizzare i singoli comparti di trattamento.
Scheda tecnica
Se desideri ricevere la scheda tecnica dettagliata, ti chiediamo cortesemente di inserire i tuoi dati nell’apposito form. Ti inveremo il materiale via mail.
Errore: Modulo di contatto non trovato.




