Descrizione:
Gli IMPIANTI MONOBLOCCO IMHOFF + FILTRO BATTERICO ANAEROBIC” monoblocco prefabbricati in C.A.V. vengono realizzati con calcestruzzo confezionato con CEMENTO PORTLAND avente ALTA RESISTENZA ai SOLFATI (ARS), FIBRORINFORZATO con fibre sintetiche antifessurazione, avente resistenza a compressione C40/50 (Rck ≥ 500 Kg./cmq.), classi di esposizione XC4, XS2/XD2, XF3, XA2, dotata di armature interne d’acciaio ad aderenza migliorata tipo B450C controllate in stabilimento.
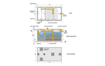
I monoblocchi Imhoff + Filtro anaerobico sono completi di comparto interno per fossa Imhoff e per filtro batterico anaerobico, sono dotati di manicotti in PVC per ingresso e scarico, deflettore/i paraschiuma in acciaio INOX AISI 304, tramogge in acciaio INOX AISI 304, tubazione di estrazione fango, parete divisoria in c.a.v. per realizzazione di comparti interni di trattamento, riempimento alla rinfusa in polipropilene isotattico nero con superficie specifica 120 mq./mc, griglia di appoggio in polipropilene isotattico nero, tubo distribuzione liquami e raccordo a Tee in PVC per raccolta e scarico liquami trattati.
Ciclo Tecnologico:
Le acque chiarificate, in uscita dalla fossa Imhoff, vengono convogliate nella parte inferiore del filtro batterico anaerobico, contenente corpi di riempimento in materiale plastico (corpi circolari ad elevato rapporto superficie/volume), per poi risalire lentamente fino allo sfioro.
Il processo anaerobico che si instaura risulta in grado di demolire una percentuale variabile del carico in arrivo in ragione sia delle condizioni climatiche, delle fluttuazioni relative allo scarico delle utenze e delle condizioni di corretta gestione e manutenzione dell’impianto.
Il refluo chiarificato viene infine convogliato per gravità verso lo scarico finale.
Destinatari:
Aziende, enti pubblici e privati.
Campi di impiego:
Insediamenti residenziali e produttivi, depurazione.
Accessori:
Rivestimenti specifici superfici interne ed esterne vasca, coperture pedonali/carrabili, chiusini in ghisa sferoidale, predisposizioni per installazione in presenza di falda acquifera sotterranea.
Marcatura CE
secondo le disposizioni della norma UNI EN 12566-3
Download scheda tecnica: Se desideri ricevere la scheda tecnica dettagliata, ti chiediamo cortesemente di inserire i tuoi dati nell’apposito form. Ti inveremo il materiale via mail.
Errore: Modulo di contatto non trovato.




